Petriplatz, die Dritte
(Büro- und Geschäftshaus)
Ortner und Ortner gewinnen
Wettbewerb
Petriplatz,
die Dritte
Ortner
und Ortner gewinnen Wettbewerb in Berlin. Innerhalb weniger Monate
wurde in Berlin ein dritter Wettbewerb am Petriplatz entschieden: Neben
dem Bet- und Lehrhaus und einem Archäologischen Zentrum plant
das Bauunternehmen Hochtief die Errichtung eines Büro- und
Geschäftshauses. Die Jury des nichtoffenen
Realisierungswettbewerbs unter Vorsitz von Christoph Langhof
kürte Ortner & Ortner zum Sieger.
Die
Preisträger sind:
1. Preis: Ortner &
Ortner Baukunst, Berlin
2.
Preis: KSP Jürgen Engel Architekten, Braunschweig
3.
Preis: Lederer + Ragnarsdóttir + Oei, Stuttgart
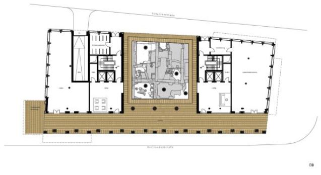
Für
die Jury setzt der Entwurf von Ortner & Ortner die
Architektursprache der ebenfalls auf dem Petriplatz geplanten
Gebäude Bet- und Lehrhaus sowie Archäologisches
Zentrum konzeptionell fort, die ruhige Form wirke der
‚Überformung und Zerstörung des
Ortes’ entgegen“. Neben den Büroetagen
sollte auch eine geeignete Lösung für ein
erhaltenswertes Bodendenkmal gefunden werden. Ortner & Ortner
sehen hierfür ein offenes, großzügig
angelegtes Erdgeschoss vor, das gleichzeitig den Zugang zu den oberen
Geschossen bilden soll.

Ansicht
Gertraudenstraße Richtung Osten |

Ansicht
Gertraudenstraße Richtung Westen |
Ansicht
Gertraudenstraße
|
Ansicht Breite Straße
|
Ansicht Scharrenstraße
|
|
Ansicht vom Petriplatz
|
Grundriss Erdgeschoss
|
|